Территорию в районе ТРЦ «Фантастика» в Нижнем Новгороде готовят в застройке
Администрация Нижнего Новгорода одобрила подготовку нового проекта межевания территории по ул. Деловой в Нижегородском районе. Участок, расположенный вблизи ТРЦ «Фантастика», готовят к застройке.
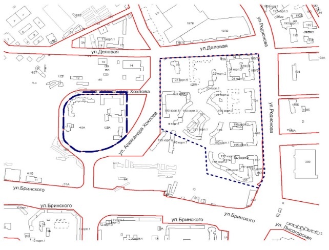
В конце ноября нижегородская мэрия опубликовала постановление о подготовке изменений в проект межевания территории (ПМТ) в границах улиц Деловой, Родионова и по ул. Александра Хохлова. Инициатором изменений выступает Агентство ипотечного жилищного кредитования (АИЖК).
Как сообщили DK.RU в АИЖК, правительственная комиссия по развитию жилищного строительства и оценке эффективности использования земельных участков, находящихся в собственности РФ, приняла решение о выделении участка площадью 0,88 га из состава участка площадью 3 га по ул. Деловой. Для этого необходим новый ПМТ.
Потенциальная стройплощадка находится во дворе домов №21 и №15 по ул. Хохлова. Она близка к ТРЦ «Фантастика» и городской магистрали – ул. Родионова. Вид разрешённого использования формируемого участка - «под размещение общежития, жилых домов и другой застройки». В дальнейшем, вероятно, территория будет выставлена на аукцион по продаже либо аренде для жилищного строительства.
ДЕТАЛИ









