На месте бывшего мясокомбината в центре Нижнего Новгорода построят шестиэтажку

Всего будет построено несколько жилых зданий, а также создан комплекс площадок общего пользования, объединенных в спортивно-игровой кластер.
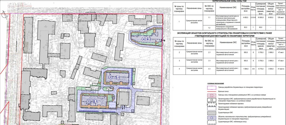
В Нижнем Новгороде вынесли на общественные обсуждения проект планировки территории, включая проект межевания территории, в границах улиц Ковалихинской, Нестерова, Ульянова, Семашко. На участке, где ранее располагался «Ковалихинский мясокомбинат», планируется строительство жилых домов.
Согласно документам с сайта мэрии, заказчиком выступило ООО «Дом на Ковалихе», разработчик проектной документации — ООО «Русский дом-НН». Она предусматривает строительство многоквартирных домов переменной этажности (2-6 этажей и 3-6 этажей), двух жилых зданий с встроенно-пристроенными помещениями общественного назначения (по 6 этажей), а также создание комплекса площадок общего пользования, объединенных в спортивно-игровой кластер, который включает:
- площадки для детей дошкольного и младшего школьного возрастов;
- спортивно-развлекательные игровые зоны;
- площадки для отдыха взрослого населения;
- благоустройство и озеленение прилегающей территории.
Проект будет проходить общественные обсуждения до 22 ноября 2024 г.
Напомним, нижегородский архитектурный совет при региональном минграде обсудил концепцию застройки участка в границах улиц Ковалихинской, Нестерова, Ульянова и Семашко в 2023 г. Она предполагала размещение на первой линии улицы Ковалихинской коммерческих зданий.
NN.DK.RU писал также, здание бывшего мясокомбината в Нижнем Новгороде снесли в конце лета 2023 г. В ходе работ были выявлены нарушения.









