Более 50 многоквартирных домов снесут в Автозаводском районе для строительства квартала
На их месте предполагается строительство 15 высоток с подземными автостоянками, двух детских садов и школы. Максимальная плотность застройки — 1,72, минимальный процент озеленения — 25.
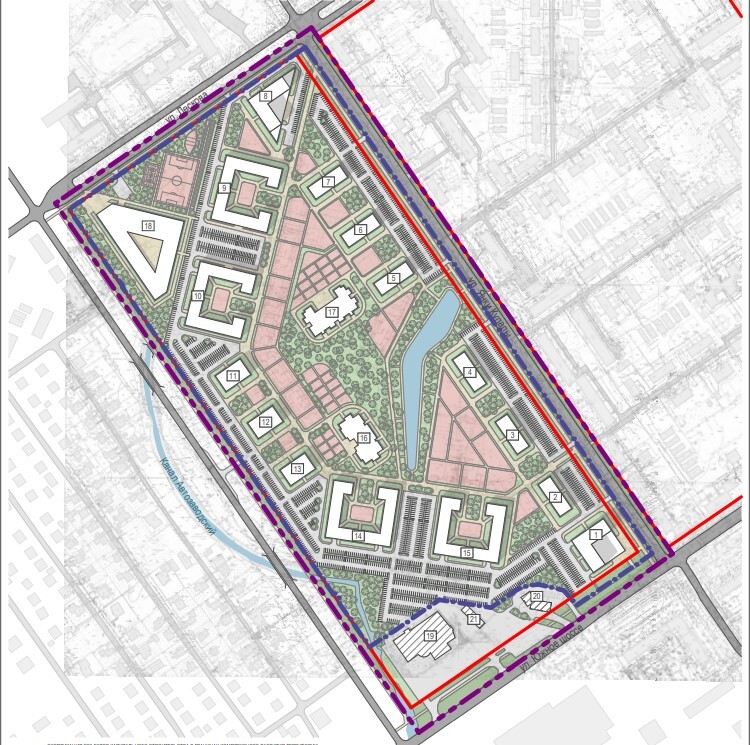
В Нижнем Новгороде планируется снести 51 многоквартирный дом в рамках комлексного развития территории (КРТ) в границах улиц Янки Купалы, Коломенской, Лескова и Южного шоссе Автозаводского района. Об этом говорится в постановлении, опубликованном на сайте правительства региона.
Согласно документу, всего предполагается демонтировать 62 объекта, в том числе: магазин, отдельно стоящее здание, тяговую и трансформаторные подстанции, канализационно-насосную станцию, здания бани и управленческой службы, котельную и сарай.
Комплексному развитию подлежит участок площадью 26,3 га. На нем хотят разместить 15 многоквартиных домов с подземными автостоянками и помещениями общественного назначения (высота — от 15 до 22 этажей), два детских сада вместимостью 320 мест и 340 мест, а также образовательную организацию на 1000 учеников. Строительство будет вестись в четыре очереди.
Потребность населения в медицинских организациях — 164 посещения в смену, будет обеспечиваться за счет существующих медицинских организаций, — говорится в постановлении.
Предельный срок реализации решения о комплексном развитии территории составит 15 лет.
NN.DK.RU писал ранее, что в Нижнем Новгороде ООО «СЗ «ДМ-Инвест Строй» было выбрано победителем торгов по третьей площадке комплексного развития территории — в границах улиц Дальняя и Большая Перекрестная.









