С видом на метромост. В Нижнем Новгороде построят 13-этажный жилой дом
Застройщик «ГРУППА инвестстрой» заключил контракт на развитие территории в границах улиц Ереванской, Дальней в Нижегородском районе в 2018 г.
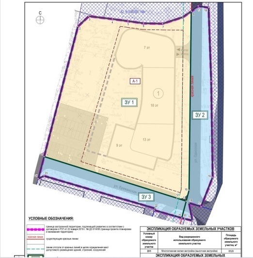
Региональное министерство градостроительной деятельности утвердило проект планировки и межевания площадки и в границах улиц Ереванской и Дальней в Нижнего Новгорода (в районе метромоста). На данном участке СЗ «ГРУППА инвестстрой» намерен построить многоквартирный жилой дом переменной этажности.
Согласно опубликованному на сайте ведомства приказу, документация по планировке земель площадью в 1,13 га была разработана ООО ПК «Горпроект». Она предполагает возведение жилого дома, который будет состоять из четырех секций высотой от 7 до 13 этажей.
Проект также предусматривает создание подземной парковочной зоны на 150 машиномест и наземной парковки, рассчитанной на 50 автомобилей.
Как ранее писал NN.DK.RU, «ГРУППА инвестстрой» заключила контракт на развитие территории в границах ул. Ереванской, Дальней в Нижегородском районе в 2018 г. На участке были расположены два дома (№10 и №14 по ул. Дальней), подлежащие сносу.









